|
|
|
|
Type_005 表裏のない平屋:内観 |
|
|
|
|
株式会社FANFARE(所在地:福岡県福岡市博多区、代表取締役:梶原清悟、以下、当社)は、暮らしを楽しく豊かにしながら、日本の森林の安定した循環にも貢献できる住宅を目指して、伝統の板倉構法と現代のデザイン・技術を融合させた環境共生型規格住宅「SOWOOD(ソーウッド)」を2025年5月に開発しました。国産材をふんだんに使用し、高い住性能を備えた新たなセレクションとして、この度「Type_005 表裏のない平屋」を2026年4月28日に発表いたします。 |
|
|
|
|
|
「Type_005 表裏のない平屋」の特長 |
|
|
|
|
|
|
Type_005 表裏のない平屋:外観 |
|
|
|
|
• |
|
「南北等価」:表と裏のない、環境に開かれたファサード |
|
南北の窓配置や仕様を同一にする「南北等価」の設計を採用しました。これにより敷地条件に左右されず、方位を問わず光と風を等しく取り込めます。視覚的にも「表裏がない」潔い佇まいは、建築としてのプリミティブな強さを象徴しています。 |
|
|
|
|
• |
|
18坪×910mmモジュールの極致 |
|
SOWOODの核である「板倉構法」に基づき、910mmピッチのモジュールを最大限に活用。構造的な安全性(耐震等級3)と空間のゆとりを両立し、18坪という最適解を導き出しました。この最小単位を「1モジュール」と定義することで、将来的な拡張や多用途展開(アトリエ、民泊等)を可能にする汎用性を持たせています。 |
|
|
|
|
• |
|
“地面から浮かぶ家”:コンクリート土間と屋根の対話 |
|
建物の周囲を囲うコンクリートの土間(デッキ)は、あえて厚みを抑え、階段との間に隙間を設けています。建物全体が地面から浮いているような視覚効果を与えています。外部空間との境界を曖昧にし、自然の中にポンと配置されるだけで成立するような独立した世界観を構築しました。 |
|
|
|
|
• |
|
伝統の「板倉構法」の可能性を広げる設計ディテール |
|
壁を張らずに構造を露出させる板倉構法特有の難題を、配線・配管の集約や意匠の工夫によって解決しました。「骨格の美しさ」を追求しています。 |
|
|
|
|
• |
|
パッシブデザインの機能美 |
|
南北に大きく開かれた開口部は、冬の蓄熱と夏の通風を自然にコントロール。コンクリート土間の蓄熱効果を活かし、機械設備に頼りすぎない心地よい温熱環境を実現しています。 |
|
|
|
|
|
|
|
|
|
|
|
|
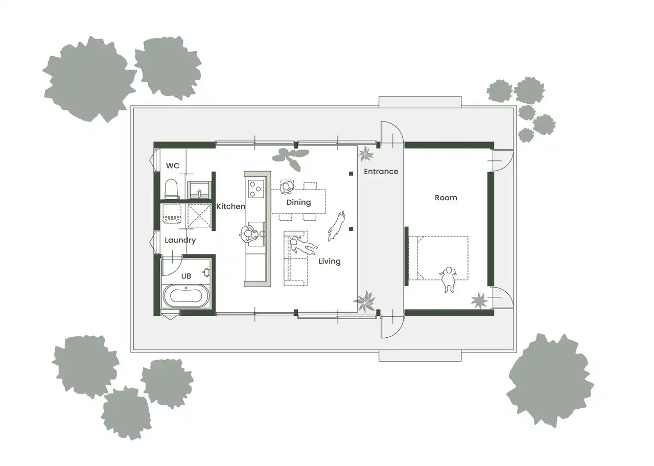
Type_005 表裏のない平屋:間取り |
|
|
|
|
|
|
|
|
設計者・代表の想い
|
|
|
|
設計:安河内健司 |
|
|
|
「Type_005表裏のない平屋」の設計で目指したのは、敷地に対して住まいを閉ざすのではなく、環境と呼応する潔い佇まいです。あえて南北の仕様を等しくする南北等価の設計は、光や風の通り道を固定概念から解放し、南北の風景をシームレスにつなぎ、どのような土地においても自然の恵みを最大限に引き出せます。また、あえて18坪というコンパクトな規模に抑えることで、無駄を削ぎ落としたからこそ生まれる空間の密度と、将来的な拡張性を持たせています。南北の窓を介して屋外とつながる中央のオープンスペースは、全土間仕様にも対応可能なフレキシブルな万能空間です。シンプルで小さな家だからこそ、住まう人がその時々の心地よさを発見できる”余白”を大切にしています。 |
|
|
|
代表:梶原清悟 |
|
|
|
SOWOODの開発発表から約一年、板倉構法協会や日本の森林事業に携わる方々と対話を重ねる中で、改めて木材建築の可能性や、それを取り巻く環境について考えを巡らせてきました。資材の高騰など、住宅業界を取り巻く状況は変化し続けていますが、私たちが大切にしたいのは、日本の国産材を暮らしの中で生かし、永く愛着を持って住み継がれる家を提案し続けることです。この住まいが、日本の豊かな森林文化と現代の暮らしをつなぐ、一つのきっかけになればと考えています。 |
|
|
|
工務店様向けSOWOODメンバー募集・見学会のご案内 |
|
|
|
自社の思想に合う工務店様や、SOWOODの理念にご興味のある方は、下記より詳細をご確認のうえお気軽にご連絡ください。 |
|
|
|
|
|
|
|
実際のモデルルームを見ていただける見学会を開催いたします。ご興味のある方は、下記より詳細をご確認のうえお気軽にお問い合わせください。 |
|
|
|
・Type_003 広がりのある平屋(栃木県):5月19日 |
|
・Type_002 大きな吹き抜け(長崎県):6月2日 |
|
|
|
|
|
|
|
SOWOODについて |
|
「深呼吸したくなる、木の家」 |
|
SOWOODは、日本の豊かな森林資源を現代の暮らしに生かし、伝統的な「板倉構法」と現代の設計技術を融合させた環境共生型規格住宅です。光や風の流れを読み解くパッシブデザインにより、自然エネルギーを最大限に活かした、木が持つ調湿性や断熱性に優れた五感で感じる住空間を創り出します。 |
|
私たちはこの伝統を継承しながら、ライフステージの変化に寄り添うフレキシブルな設計と、国産材の積極的な活用を通じて、日本の森林が持つ健全な循環に寄与することを目指しています。 |
素材の質感を楽しみながら、住まう人がその時々の心地よさを自由に描き出せる、永く愛着のわく住環境を提案しています。 https://sowood.jp/
|
|
|
|
|
 |
|
|
|
株式会社FANFAREについて |
|
|
|
|
|
|
|
株式会社FANFARE(ファンファーレ)は、木造住宅に特化した設計事務所をルーツに持ち、現在は企業のアイデンティティを抽出し、多角的に表現するブランディング会社として企業支援を行っています。建築設計、木造住宅用温熱・省エネシミュレーションシステムの運営、プロダクト開発からWEB・グラフィックデザインまで、企業の魅力を引き出し、一貫性のあるブランディングを提案。建築設計を軸に、システム開発やトータルデザインまで幅広く展開しています。 |
|
創業10年の節目に中規模木造建築として自社アトリエを計画し、『ウッドデザイン賞2022 ライフスタイルデザイン部門 建築・空間分野』を受賞。木の魅力を暮らしの中で実感できる場として体現し、自然と調和する空間づくりを大切にしています。 |
|
https://www.at-fanfare.com/ |
|